Popeyes Staff Confirm Fredericton Location is Coming
FREDERICTON – Huddle can now confirm that Fredericton will be getting a Popeyes Chicken.
Staff at Popeyes’ Moncton location confirmed in a call that Fredericton will be getting its own restaurant sometime soon. Although they were unsure of the exact timeframe, they did say that construction is expected to start shortly.
RELATED: Popeyes Chicken Franchise Will Open In Moncton Too
Since the first mention of a specific development during Fredericton’s Planning Advisory Committee (PAC) meeting in November 2021, people in the community have been speculating that the unnamed project was in fact a Popeyes.
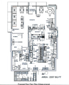
Online sleuths pointed the building plans included in the PAC agenda looked very much like a typical Popeyes restaurant, and even posted a side-by-side comparison on social media.

Assuming that these development plans are in fact for a Popeyes Chicken, the restaurant will be located at 35-55 Saint Roch Street. Other nearby businesses are the Tim Hortons on Hanwell Road, Pur and Simple, and others.
The plans show that the restaurant will be 2207 square feet. There will be 33 seats available with a combination of both tables and booths.
Along with this, there will also be a drive thru available for those who are on the go. The drive thru will wrap around the building and will have two ordering speakers to help with traffic flow.

This would be Popeyes Chicken’s third location in New Brunswick, with their first being in Moncton, and a second currently under construction in Saint John.
RELATED: Popeyes’ Moncton Neighbour Describes ‘Four-Mile-Long Line’ For Famed Fried Chicken
On the opening day of the Moncton location, the demand in the community was significant. It was stated that the drive thru had been backed up for roughly six kilometers, with some people waiting for three hours to get their chicken.
A similar experience occurred in Bedford, Nova Scotia when their location first opened, and is expected by community members to occur when both Saint John and Fredericton officially open their locations.
Ryley Roach is a Huddle student intern, based in Fredericton. Send her your feedback and story ideas: [email protected]
