Moncton Council Supports Plan to Build 473-Unit Subdivision in the North End
MONCTON – In a public hearing Monday, the City Council voted 7-3 to rezone land for a 473-unit mixed-density subdivision off Maplehurst Drive to be built by September 2019.
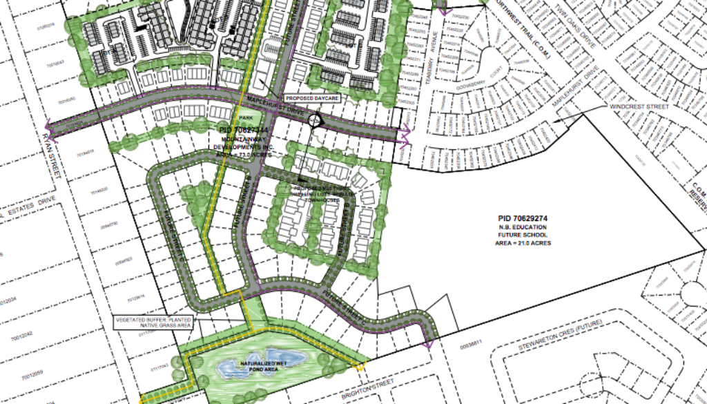
Mountain Way Developments made changes to the plan following objections from residents.
The subdivision will include a mix of single-family homes, townhouses, apartments and semi-detached homes. Initially, 510 dwelling units were proposed with a density of seven units per acre, but the new plan will be less dense at 6.5 units per acre.
It will be located in the rapidly growing north end area of Moncton, near a public middle-school that’s expected to be ready next fall. The landowner is also proposing for a daycare to be located on Maplehurst Drive.
Julien Daigle, a junior engineer at J.R Daigle Engineering, made the application for the development on behalf of Paul Arsenault of Mountain Way Developments. He said the revised plan is clearer and more detailed than the previous one.
“Personally we’re happy of course. The developer has good intentions of making a high-quality product development and I’m sure he’s going to go through with his words. So we’re happy.”
The plan faced objections from residents in the surrounding area. They were worried about property values, a development over protected wetlands, and safety for their children.
In 2012, the landowner filed a request with the province to turn the 15 acres of wetland into a residential subdivision. It went through an Environmental Impact Assessment and was approved with some conditions. This includes adding a naturalized storm-water retention pond to compensate for removing the wetland.

Drew MacKinnon, who represented residents on Teaberry Avenue and Ryan Street opposed to the development, said they’re not against growth. Rather, they were concerned about losing the protected wetlands.
“A lot of residents from Teaberry that came to the meetings [with the developers] are happy those changes were made, but we’re still losing one of Moncton’s last wetlands,” he said.
“This was an area where literally kids from all around the neighbourhood used to come in their rubber boots and catch frogs and tadpoles and stuff. We weren’t naive and think that that area was never going to be developed. We just think it’s a shame that this planning department would rather build a pond that they can merchandise and say, ‘look at this pond we built,’ instead of maintaining the wetland that was already doing that.”
He encouraged residents to be involved when planning issues come up in their neighbourhoods.
“If the residents of Ryan and Teaberry hadn’t organized the first time this came up, we wouldn’t have things like the 12 or 15 requirements that were put in there, the increase in the buffer behind their own properties. So it’s really up to residents of Moncton to look out for themselves because this council and the committee isn’t doing it.”
The city has placed 16 conditions on the rezoning approval. These include widening the buffer areas between existing homes and townhouse node from 32 feet to 82 feet, limiting apartment buildings to three storeys and townhouses to 1.5 storeys.
Jean-Robert Daigle, the president and owner of J.R Daigle Engineering, believes most residents are content.
“I think we’ve been able to satisfy most of the residents. I think it was 12 private meetings [that we had with residents]? And tonight there are only two [residents at the City Hall].”
Mayor Dawn Arnold said the development fits the city’s growth objective.
“Our goal as a city right now is to create density within our serviceable boundaries, so this definitely checks that box,” she said.
Mayor Arnold said it was difficult to anticipate the many requests of rezonings in the north end area of the city. But she said the three schools planned there are “game changers” for development.
“Nothing drives development more than elementary schools. So that has been a huge factor in the need to do some of these rezonings.”
The subdivision’s construction could start later this year.
